Rezervujte ještě dnes: (+420) 602 666 208
Bydlení v Olšinkách
  • Hlavní stránka
  • O projektu
    • O projektu
    • Aktuality
  • Lokalita
  • Bytové domy
  • Řadové domy
  • Rodinné domy, pozemky
  • Parkoviště
    • Parkoviště - BD
    • Parkoviště - ŘRD
  • Ceník
    • Ceník
    • Financování
  • Standardy
    • Bytové domy
    • Řadové domy
    • R2B
  • Galerie
  • Kontakt
  • Zobrazit klasickou verzi Zobrazit mobilní verzi

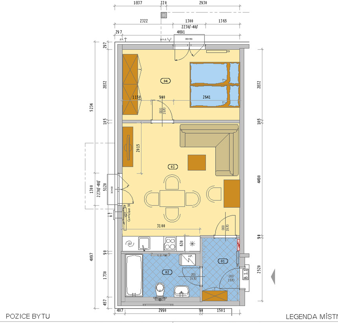
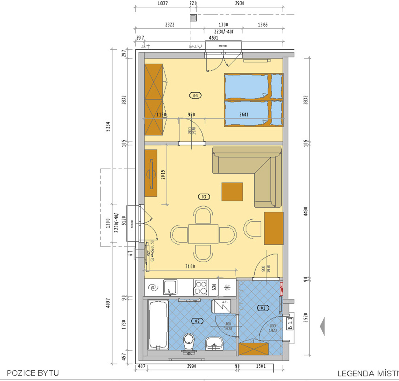
1. nadzemní podlaží|BYT B 1.1

Zpět na výběr bytu
Stav Prodaný
Výměra celkem 47 m2
Dispozice 2 + kk
Bytový dům BD-N
Podlaží 1. nadzemní podlaží
Balkon 0 m2
Terasa —
Předzahrádka 193
Skladovací kóje 2,3
Parkování 1
Cena celkem včetně DPH 0 Kč
Byt B 1.1
Karta bytu
Standardy
Prodáno
Chci se zeptat

Rychlý kontakt

(+420) 602 666 208
#sudomova%z%bydleniuplzne.cz

Nabízíme

  • Bytové domy
  • Řadové domy
  • Pozemky
  • Parkoviště

O projektu

  • O projektu
  • Lokalita
  • Ceník
  • Financování
  • Standardy
  • Galerie
  • Kontakt

Veškerá schémata, situace, vizualizace a jiná zobrazení projektu či jeho částí a jiné dokumenty a informace, týkající se projektu a prezentované společností Bydlení DGH Olšinky s.r.o. mimo rámec uzavřených smluv, uveřejněné v jakékoli podobě a jakoukoli formou, mají pouze ilustrační charakter, nejsou závazné a nejsou nabídkou ani návrhem na uzavření smlouvy. Společnost Bydlení DGH Olšinky, s.r.o. si vyhrazuje právo na jejich změnu.

Copyright © Bydlení v Olšinkách | Ochrana osobních údajů | Zobrazit klasickou verzi Zobrazit mobilní verzi

Marketing zajišťuje společnost D.A.Bydlení EU, s.r.o.

Vytvořil Systém